Топ-100
Menu
  • бежевый

  • белый

  • желтый

  • зеленый

  • золотой

  • коричневый

  • красный

  • оранжевый

  • Пригласительные на свадьбу своими руками

  • розовый

  • серый

  • синий

  • Удачные примеры цветовых сочетаний для дизайнов интерьера 2018 года

  • фиолетовый

  • черный

Лестницы
Лестница на тетивах со стеклом
Спальня
спальня
Гостиная
Московская классика
Кухня
Кухня
Гостиная
Дворянская классика
Гостиная
Горький шоколад и апельсин
Детская комната
детская
Ванная
Квартира в стиле 50х.
Детская комната
Горький шоколад и апельсин
Гостиная
Дом в Павлово 400 кв.м
Коридор
Минимализм
Спальня
Спальня
Детская комната
Детская двухъярусная кровать «Ресторан»
Коридор
Коридор
Гостиная
Коралловая сага и мятая бумага
Ванная
Горький шоколад и апельсин
Гостиная
Интерьер в стиле Райта
Детская комната
Дворянская классика
Детская комната
Лофт
Гостиная
9
Прихожая
Пастила
Спальня
Квартира в Москве в Шмитовском пр. в восточном стиле. Для проживания семьи из 3-х человек
Фасад
9
Спальня
Этюд в розовых тонах
Ванная
Квартира в центре Москвы
Ванная
Коридор
Ванная
Ванная комната
Кухня
Звёздный шик
Спальня
Дизайн-проект в 2-х комнатной квартиры Одесса
Гостиная
Гостиная
Детская комната
Книжные стеллажи. Фальш-камин.
Детская комната
Ангельская симфония
Спальня
Изысканность по-французски
Детская комната
Лоджия
Фасад
планировка деревянного дома
Детская комната
Детская
Гостиная
дизайн-проект квартиры в современном стиле
Коридор
Акварель
Ванная
Ванная
Гостиная
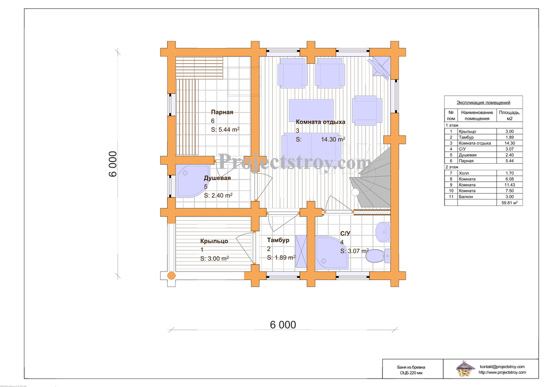
Двухэтажная баня из бревна 6 на 6 метров.? Проект сруба бани из оцилиндрованного бревна 220 мм с тремя комнатами на втором этаже. Экспликация бани: — крыльцо; — тамбур; — санузел+бойлерная; — небольшая душевая; — комната отдыха; — парная 5 кв. м; — три комнаты на втором этаже; — балкон на две комната. Показатели для предварительного сметного расчета строительства: общая площадь — 59.8 кв. м объем ОЦБ бревна 220 мм (паз 120 мм) заг. 6 м ~ 41 куб. м (отход~2%) балки — 100х200 мм стропила — 50х200 мм площадь кровли и периметр — 75 кв. м — 50 м угол кровли — 39 гр. пог. м фундамента дома — 38 м высота 1-го этажа — 2.7 м высота подъема стен 2-го этажа — 1.47 м. На заметку!? Расстояние бани от границ соседнего участка минимум 1 м от выступающей части строения бани более 500 мм (включая выступ кровли). Точная смета на строительство силовой части сруба бани зависит от типа фундамента, материала кровли, степени изменения проекта, доставки материала до участка, степени обустройства участка и скрытых пожеланий индивидуальности заказчика).? http://projectstroy.com/project_a_15.html
Столовая
Графика и бетон
Ванная
раковина Roca
Ванная
Звёздный шик
Кухня
Кухня
Ванная
Ванная комната 2-2
Кухня
Замок
Гостиная
Эстетика
Спальня
Спальня
Ванная
Звёздный шик
Фасад
12
Кухня
Квартира в ар-деко стиле
Adblock
detector